本社インフォメーションデスク
0120-988-264
10:00AM 〜 6:30PM / 年中無休 (年末年始を除く)
電話をする お問い合わせ/
資料請求

藤和ライブタウン綱島の丘B棟

Address
神奈川県横浜市港北区高田西4丁目
Access
横浜市グリーンライン「高田」駅 徒歩12分、横浜市グリーンライン「東山田」駅 徒歩12分
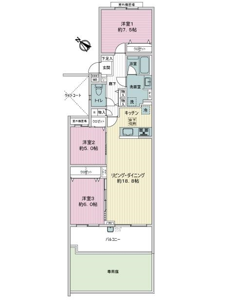
  • リビング・ダイニングはゆとりの約18.8帖
  • となりの洋室建具を開ければ、さらに広々とした空間となります
  • リビングを見渡せる対面式キッチン(床下収納付き)
  • 追い焚き機能、換気乾燥機能付きの浴室
  • タテ型LED照明内蔵の三面鏡付き洗面台
  • 換気可能な窓付きのトイレ(温水洗浄便座付き)
  • 約6.0帖の洋室3
  • 約5.0帖の洋室2
  • 約7.5帖の洋室1
  • 外観写真
  • エントランス
  • エントランスホール
  • 玄関
  • 11.35平米のバルコニー(スロップシンク付き)
  • 戸建て感覚で利用可能な専用庭(17平米)
  • 廊下部分
  • 食洗機
  • 浴室のリモコン
  • 洋室1に設置されたインターホン子機
  • 上部吊戸棚付きの洗濯機置き場
  • バルコニーのスロップシンク

戸建て感覚で利用可能な17平米の専用庭付き×新規リノベーション

3,998
万円
(税込)
  • 85.11m²
  • 3LDK
  • 南西向き
  • 2F
  • 神奈川県横浜市港北区高田西4丁目
横浜市グリーンライン「高田」駅 徒歩12分
横浜市グリーンライン「東山田」駅 徒歩12分
管理番号:MHF78986

・市営地下鉄グリーンライン「高田」駅 徒歩12分
・市営地下鉄グリーンライン「東山田」駅 徒歩12分
・専有面積85.11平米、3LDK
・リビングを見渡せる対面式キッチン(床下収納付き)
・窓付き(採光のみ)のトイレ
・スロップシンク付きのバルコニー
・家族の一員ペットと暮らせるマンション
~~~~~~リノベーション内容~~~~~~
(2025年6月30日完了)
・システムキッチン交換
・ユニットバス交換
・洗面化粧台交換
・トイレ交換
・全フローリング張替  
・建具交換
・全クロス貼替 
・玄関床張替 
・洗濯機用防水パン交換 
・ガス給湯器交換   ・・・等
~~~~~~~~~~~~~~~~~~~~~

藤和ライブタウン綱島の丘B棟のリノベーション情報

物件の特徴

物件の特徴

ここがポイント

大京穴吹不動産が売主のリノベーションマンション
――――― Renoα:リノアルファ ―――――
すべてのステージでお客様に安心をお届けします

STAGE1. 仕入れ品質
STAGE2. プランニング品質
STAGE3. 施工品質
STAGE4. アフターサービス品質
――――――――――――――――――――――
すべてのRenoα(リノアルファ)が
リノベーション協議会の定める「R1住宅」の
基準を満たした「適合リノベーション住宅」です。

「R1住宅」の適合基準
・重要インフラ13項目検査
・適合状況報告書発行
・13項目の重要インフラに対し2年以上の保証
・住宅履歴を協議会のサーバーに保管

仕様変更内容

キッチン・浴室・洗面台・トイレ各交換、フローリング張替え等

仕様変更日

2025年6月

物件の特徴

藤和ライブタウン綱島の丘B棟の物件概要

所在地
神奈川県横浜市港北区高田西4丁目
交通
横浜市グリーンライン「高田」駅 徒歩12分
横浜市グリーンライン「東山田」駅 徒歩12分
価格
3,998万円(税込)
ローンシミュレーション
管理費
10,400円(月額)
修繕積立金
12,864円(月額)
その他費用
専用庭:900円(月額)
間取り
3LDK
専有面積
85.11㎡
バルコニー
面積
11.35㎡
専用使用
部分面積
専用庭面積 17㎡/室外機置場 2.37㎡
築年
1990年5月築
構造
鉄筋コンクリート造
建物階数
地上10階
所在階数
2階
向き
南西向き
現況
空家
総戸数
73戸
管理形態/管理方式
全部委託/日勤
土地権利
所有権
用途地域
第一種低層住居専用地域
駐車場
-
引渡
相談
取引態様
売主
周辺環境
ローソン都筑東山田町店 520m/Fit Care DEPOT高田西店 340m/スーパー三徳高田店 1010m/そよら横浜高田 790m/高田中央病院 840m/島忠ホームズ港北高田店 480m/高田上耕地公園 30m/横浜市立高田小学校 620m/横浜市立高田中学校 600m
設備・条件
など
外壁タイル張り/南西向き/LDK18畳以上/全居室洋室/対面式キッチン/3口以上コンロ/浄水器/追焚機能浴室/温水洗浄便座/三面鏡付洗面化粧台/床下収納/全居室収納/BS/CATV/ペット相談/2駅利用可/スロップシンク/全居室フローリング/人感照明センサー/適合リノベーション/Renoα(リノアルファ)
備考
・掲載中の家具・什器は販売価格に含まれません
管理番号
MHF78986
次回更新
予定日
2025/10/13
情報更新日
2025/10/07

弊社は公益社団法人首都圏不動産公正取引協議会に所属しています。
その他の所属団体はこちらよりご確認ください。

藤和ライブタウン綱島の丘B棟の資料請求

本社インフォメーションデスク
TEL.0120-988-264
10:00AM 〜 6:30PM / 年中無休 (年末年始を除く)

リノアルファ・リノベーションマンションに関するご質問、物件情報や資料請求を受け付けております。お気軽にご連絡ください。
営業時間外にいただきましたお問い合わせにつきましては、翌営業日以降に折り返しご連絡させていただきます。

同じエリアのリノベーションマンション

コラム

マンションのリノベーション施工からインテリアに関することまで様々なコンテンツを配信。リノアルファをご購入いただいたお客さまのその後の過ごし方など、気になる情報が盛りだくさんです。

スペシャルコンテンツ

  • リノアルファ アイスタイル

    都会的な居住とコンパクト・リノベーションにこだわり、その可能性を問い続けていく、大京穴吹不動産のリノベーションマンション・シリーズ

  • リノアルファ アイスタイル イロドリ S

    それが住まいに先進機器とアプリケーションを組み入れ、融合させたリノベーションマンション「リノアルファ アイスタイル イロドリ S」です。