ライオンズシティ調布
- Address
- 東京都調布市布田3丁目
- Access
- 京王線「調布」駅 徒歩6分、京王線「布田」駅 徒歩3分
~ リノベーションマンション × 南東向角住戸 ~
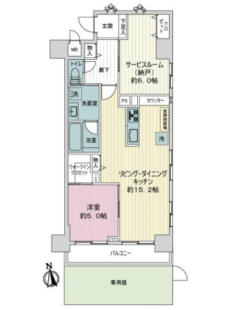
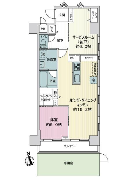
- 62.05m²
- 1LDK+S(納戸)
- 南向き
- 1F
- 東京都調布市布田3丁目
・京王線「調布」駅から徒歩6分
・京王線「布田」駅から徒歩3分
・大京(旧)分譲のライオンズシリーズ
・12階建1階部分の南・東角住戸
・専用庭付住戸
・大京穴吹不動産が売主のリノベーションマンション「リノα」
-Living Information-
・セブンイレブン調布布田駅前店/徒歩4分(270m)
・スーパーマーケットリコス布田駅前店/徒歩3分(220m)
~~~~~~リノベーション内容~~~~~~
(2026年2月16日完了予定)
・システムキッチン交換
・ユニットバス交換
・洗面化粧台交換
・トイレ交換
・洗濯機用防水パン交換
・ガス給湯器交換 ・・・等
~~~~~~~~~~~~~~~~~~~~~
リフォーム内容は予定であり変更となる場合がございます。
ライオンズシティ調布のリノベーション情報
物件の特徴
物件の特徴
ここがポイント
大京穴吹不動産が売主のリノベーションマンション
――――― Renoα:リノアルファ ―――――
すべてのステージでお客様に安心をお届けします
STAGE1. 仕入れ品質
STAGE2. プランニング品質
STAGE3. 施工品質
STAGE4. アフターサービス品質
――――――――――――――――――――――
すべてのRenoα(リノアルファ)が
リノベーション協議会の定める「R1住宅」の
基準を満たした「適合リノベーション住宅」です。
「R1住宅」の適合基準
・重要インフラ13項目検査
・適合状況報告書発行
・13項目の重要インフラに対し2年以上の保証
・住宅履歴を協議会のサーバーに保管
仕様変更内容
-
仕様変更日
-
ライオンズシティ調布の物件概要
- 所在地
- 東京都調布市布田3丁目
- 交通
- 京王線「調布」駅 徒歩6分
京王線「布田」駅 徒歩3分
- 価格
- 6,198万円(税込)
ローンシミュレーション - 管理費
- 14,800円(月額)
- 修繕積立金
- 18,490円(月額)
- その他費用
- 専用庭:320円(月額)
- 間取り
- 1LDK+S(納戸)
- 専有面積
- 62.05㎡
- バルコニー
面積 - -
- 専用使用
部分面積 - 専用庭面積 10.8㎡/テラス 5.67㎡
- 築年
- 1993年12月築
- 構造
- 鉄骨鉄筋コンクリート造
- 建物階数
- 地上12階
- 所在階数
- 1階
- 向き
- 南向き
- 現況
- 空家
- 総戸数
- 117戸
- 管理形態/管理方式
- 全部委託/日勤
- 土地権利
- 所有権
- 用途地域
- 第一種中高層住居専用地域
- 駐車場
- -
- 引渡
- 相談
- 取引態様
- 売主
- 周辺環境
- セブンイレブン調布布田駅前店 270m/スーパーマーケットリコス布田駅前店 220m
- 設備・条件
など - 外壁タイル張り/エレベーター/宅配ボックス/エレベーター2基/風除室/角住戸/シャワー付洗面台/洗面所独立/洗面化粧台/ウォークインクロゼット/クロゼット/納戸/駅まで平坦/平坦地/内装リフォーム後渡/Renoα(リノアルファ)
- 備考
- ・掲載中の家具・什器は販売価格に含まれません。
- 管理番号
- MHF87248
- 次回更新
予定日 - 2026/02/28
- 情報更新日
- 2026/02/22
弊社は公益社団法人首都圏不動産公正取引協議会に所属しています。
その他の所属団体はこちらよりご確認ください。
ライオンズシティ調布の資料請求
- 本社インフォメーションデスク
- TEL.0120-988-264
- 10:00AM 〜 6:30PM / 年中無休 (年末年始を除く)
リノアルファ・リノベーションマンションに関するご質問、物件情報や資料請求を受け付けております。お気軽にご連絡ください。
営業時間外にいただきましたお問い合わせにつきましては、翌営業日以降に折り返しご連絡させていただきます。
同じエリアのリノベーションマンション
-
パークホームズ調布スクエアガーデン
京王線「調布」駅 徒歩15分
6,898万円(税込)- 3LDK
- 71㎡
-
フランシェールつつじヶ丘
京王線「つつじヶ丘」駅 徒歩2分
5,998万円(税込)- 2LDK+S(納戸)
- 74㎡
-
ライオンズガーデン調布多摩川
京王相模原線「京王多摩川」駅 徒歩10分
京王線「調布」駅 徒歩18分
南武線「矢野口」駅 徒歩19分4,198万円(税込)- 3LDK
- 72㎡
コラム
マンションのリノベーション施工からインテリアに関することまで様々なコンテンツを配信。リノアルファをご購入いただいたお客さまのその後の過ごし方など、気になる情報が盛りだくさんです。

