フォレストレイクひばりが丘C棟
- Address
- 東京都西東京市ひばりが丘4丁目
- Access
- バス停「南沢四丁目」徒歩6分 西武池袋線「ひばりヶ丘」駅までバス12分、西武池袋線「ひばりヶ丘」駅 徒歩26分
大京穴吹不動産が売主のリノベーション×旧大京分譲
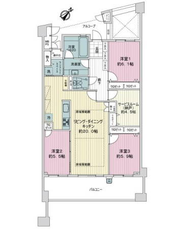
- 95.88m²
- 3LDK+S(納戸)
- 南東向き
- 2F
- 東京都西東京市ひばりが丘4丁目
-Living Information-
・市立中原小学校/徒歩14分(1080m)
・イオンモール東久留米/徒歩3分(240m)
・全14棟構成(A~N棟)、全棟総戸数381戸、約58000平米超の広大な敷地面積は、東京ドーム(グラウンド)約4.5倍。
・「環境共生住宅団地」認定マンション(認定取得日:2002年4月10日)
・ペット飼育可(「犬・猫は合わせて計2匹」まで。犬の場合「ペットクラブ会費」150円/月が必要。飼育細則有)
・修繕積立金月額内訳・・・棟別14770円、団地3650円
・独立性の高い「アルコ-ブ」には各住戸専用のトランクルームが設置されておりアウトドア用品などをしまえ、居住空間が広く使えます。
~~~~~~リノベーション内容~~~~~~~~~
(2026年2月完了予定)
・システムキッチン交換
・ユニットバス交換
・洗面化粧台交換
・トイレ交換
・建具交換
・洗濯機用防水パン交換
・ガス給湯器交換・・・等
リフォーム内容は予定であり、変更となる場合があります。
~~~~~~~~~~~~~~~~~~~~~~~~
フォレストレイクひばりが丘C棟のリノベーション情報
物件の特徴
物件の特徴
ここがポイント
大京穴吹不動産が売主のリノベーションマンション
――――― Renoα:リノアルファ ―――――
すべてのステージでお客様に安心をお届けします
STAGE1. 仕入れ品質
STAGE2. プランニング品質
STAGE3. 施工品質
STAGE4. アフターサービス品質
――――――――――――――――――――――
すべてのRenoα(リノアルファ)が
リノベーション協議会の定める「R1住宅」の
基準を満たした「適合リノベーション住宅」です。
「R1住宅」の適合基準
・重要インフラ13項目検査
・適合状況報告書発行
・13項目の重要インフラに対し2年以上の保証
・住宅履歴を協議会のサーバーに保管
仕様変更内容
キッチン交換、浴室交換、トイレ交換、洗面化粧台交換など
仕様変更日
2026年2月
フォレストレイクひばりが丘C棟の物件概要
- 所在地
- 東京都西東京市ひばりが丘4丁目
- 交通
- バス停「南沢四丁目」徒歩6分 西武池袋線「ひばりヶ丘」駅までバス12分
西武池袋線「ひばりヶ丘」駅 徒歩26分
- 価格
- 5,498万円(税込)
ローンシミュレーション - 管理費
- 14,530円(月額)
- 修繕積立金
- 18,420円(月額)
- その他費用
- -
- 間取り
- 3LDK+S(納戸)
- 専有面積
- 95.88㎡
- バルコニー
面積 - 17.12㎡
- 専用使用
部分面積 - アルコーブ 8.23㎡/トランクルーム 0.6㎡
- 築年
- 2003年2月築
- 構造
- 鉄筋コンクリート造
- 建物階数
- 地上5階
- 所在階数
- 2階
- 向き
- 南東向き
- 現況
- 空家
- 総戸数
- 30戸
- 管理形態/管理方式
- 全部委託/日勤
- 土地権利
- 所有権
- 用途地域
- 第一種低層住居専用地域
- 駐車場
- -
- 引渡
- 相談
- 取引態様
- 売主
- 周辺環境
- イオンモール東久留米 270m/市立中原小学校 1130m/市立ひばりが丘中学校 850m/ひばりヶ丘3丁目けやき公園 1060m
- 設備・条件
など - 外壁タイル張り/エレベーター/宅配ボックス/ペット専用設備/集会所/駐輪場/南東向き/ライトコート/オートロック/LDK20畳以上/全居室洋室/システムキッチン/対面式キッチン/2WAYキッチン/勝手口/2WAY洗面所/洗面化粧台/床暖房/クロゼット/クロゼット3ヶ所/シューズボックス/全居室収納/BS/CS/CATV/TVモニタ付インターホン/ペット相談/閑静な住宅地/平坦地/1種低層/緑豊かな住宅地/全居室フローリング/リノベーション/Renoα(リノアルファ)
- 備考
- ・掲載中の家具・什器は販売価格に含まれません。
- 管理番号
- MHF86542
- 次回更新
予定日 - 2026/02/28
- 情報更新日
- 2026/02/22
弊社は公益社団法人首都圏不動産公正取引協議会に所属しています。
その他の所属団体はこちらよりご確認ください。
フォレストレイクひばりが丘C棟の資料請求
- 本社インフォメーションデスク
- TEL.0120-988-264
- 10:00AM 〜 6:30PM / 年中無休 (年末年始を除く)
リノアルファ・リノベーションマンションに関するご質問、物件情報や資料請求を受け付けております。お気軽にご連絡ください。
営業時間外にいただきましたお問い合わせにつきましては、翌営業日以降に折り返しご連絡させていただきます。
同じエリアのリノベーションマンション
-
ライオンズシティ田無本町
西武新宿線「田無」駅 徒歩5分
西武新宿線「西武柳沢」駅 徒歩16分5,498万円(税込)- 3LDK
- 74㎡
-
ライオンズマンション田無イーストレジデンス
西武新宿線「西武柳沢」駅 徒歩6分
西武新宿線「田無」駅 徒歩17分4,798万円(税込)- 3LDK
- 68㎡
-
コスモひばりが丘ザ・ガーデンズフォートブリリアントヒル
西武池袋線「ひばりヶ丘」駅 徒歩12分
バス停「谷戸」徒歩3分 西武池袋線「ひばりヶ丘」駅までバス5分6,598万円(税込)- 3LDK
- 84㎡
コラム
マンションのリノベーション施工からインテリアに関することまで様々なコンテンツを配信。リノアルファをご購入いただいたお客さまのその後の過ごし方など、気になる情報が盛りだくさんです。

